Services
Renewable Energy
MEP Engineering
Structural Engineering
3D modeling
Case studies
Calculators
Electrical Load Calculator
Electrical Calculations
About
Contact us
Sign In
Services
Renewable Energy
MEP Engineering
Structural Engineering
3D modeling
Case studies
Calculators
Electrical Load Calculator
Electrical Calculations
About
Contact us
Sign In
Sign In
Our customers
Case studies
See how our engineering solutions solved real challenges.
Real projects, real results.
General
Renewable Energy
MEP Engineering
Structural Engineering
3D modeling
104 Park Avenue
See more
Fairfield Plans
See more
Engineerinc Introduction - Eicon Corp - 12 Linden St
See more
Engineerinc Introduction to Lost Oasis
See more
Zinfindal ADU
See more
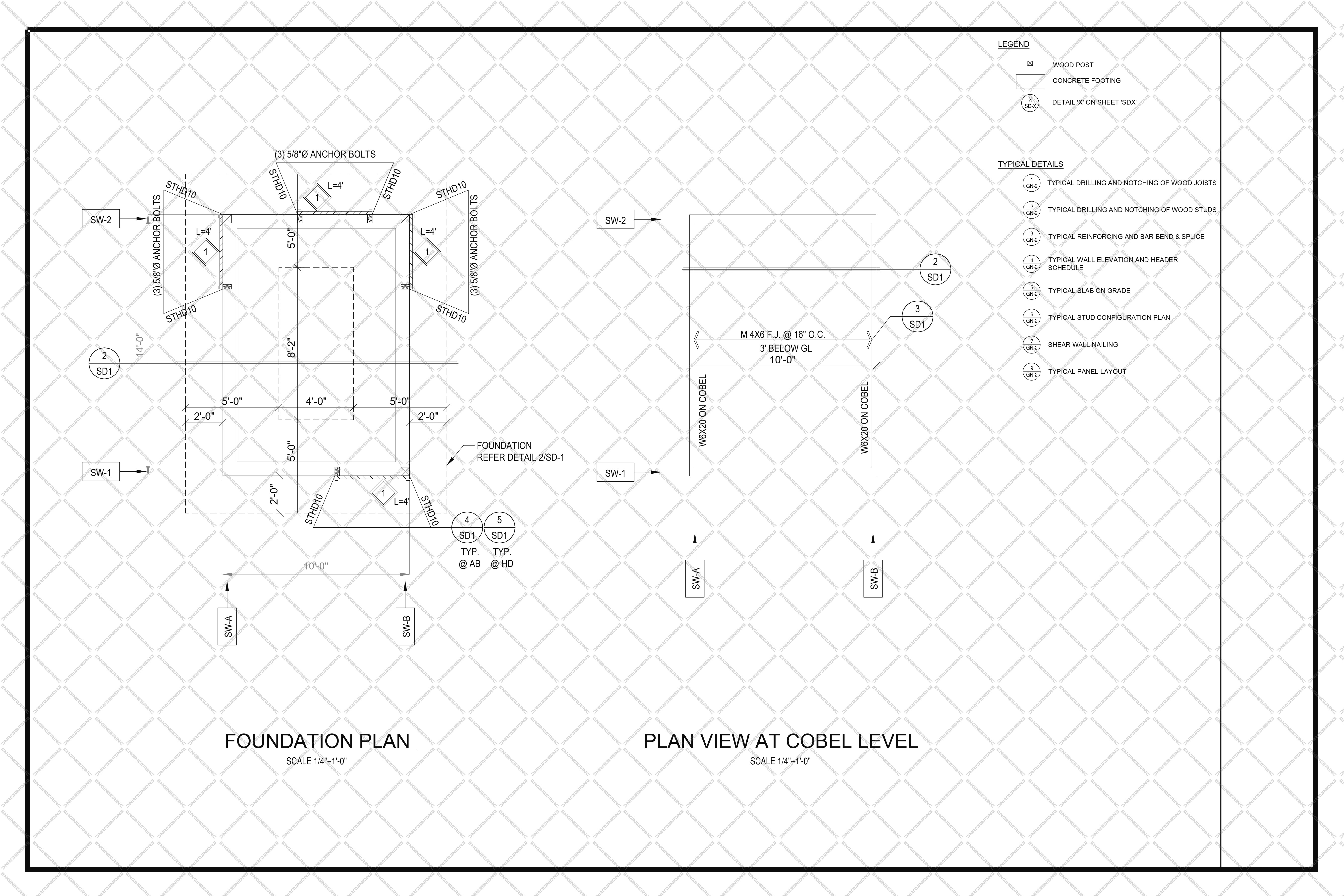
Carport Engineering
See more
Construction Department - OOS Re Detached Garage Calculation Request for Greg Bayers #21723
See more
1
2
3
Contact us
Calculator